Historical Development Planning Information
September 4, 2005
Most recent items at top
For Current
Development Planning Information, Click Here
When viewing images in
FIREFOX click anywhere on the screen to enlarge them.
In Internet Explorer click VIEW then FULL SCREEN then use the
enlargement button at bottom right of screen.
Otherwise, download the file and use other programs to enlarge or print
the image.
The community survey response
summaries referred to in the September 3, 2005 HOA mailing are
marked 
MHIWG May 2005 211
TH - Revision of Berman April 19 Proposed Plan
Revised Berman 258 Townhouse
Conceptual Layout
February 3, 2005 MH HOA Board
Mailing
- Letter,
Background, Time line, References and Initial Survey Form
- Initial
Survey Form February 3, 2005
- List of Facts and Assumptions
- Berman examples of
Townhouse and Mid-Rise Designs Jan
18, 2005 (these are not proposed models)
- Berman conceptual layout of up
to 300 Mid-Rise Units on Undeveloped Parcels
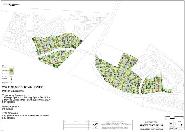
- Berman
conceptual layout of up to 267 Townhouse Units on Undeveloped Parcels
- Laurel
Leader article, Nov 17, 2004
- Laurel
Gazette article, Nov 18, 2004
- CB-089-2004 Adequate
Public Facilities Police,
Fire/EMS Response Time Goals Prior to New Development
- Sec. 24-122.02. School
Facilities Tests
- Washington
Post Article Nov 17, 2004, Prince Georges Restricts Growth; Emergency
Services Standards Stricter
Recap of MH
Community Meeting January 18, 2005 (MH NEWS)
Recap of MH Community Meeting January
11, 2005 (MH NEWS)
OTHER
RELEVANT INFORMATION:
High Resolution Zoomable Scrollable Aerial
View of Montpelier Hills Area
Laurel
Leader article, Nov 17, 2004
Laurel
Gazette article, Nov 18, 2004
Washington
Post Article Nov 17, 2004, Prince Georges Restricts Growth; Emergency
Services Standards Stricter
1996
County Law CB-56-1996
Limits number
of townhouses and multifamily dwellings in certain zones,
and imposes height limitations on multifamily buildings
CB-089-2004 Adequate
Public Facilities Police,
Fire/EMS Response Time Goals Prior to New Development
Sec. 24-122.02. School
Facilities Tests
Prince George's County Sub-Region 1
Master Plan and Sectional Map Amendment Process